Denah Rumah Minimalis 2 Lantai Type 60 Merupakan komponen informasi yang sudah kami rangkum dari denah rumah type 60 dengan 3 kamar tidur. Informasi ini kami sengaja siapkan untuk anda yang memerlukan Model rumah kecil simpel . Artikel dari desain rumah minimalis luas tanah 60 meter juga dapat ente download dengan save. Dengan seperti itu gambar Figur rumah minimalis sederhana dapat kamu proleh dengan gampang dan gratisss. Download mengenai gambar tipe rumah minimalis 3 kamar tidur lainnya juga. Semoga Rumah Minimalis dapat membantu kamu dalam menemukan sebuah ide buat anda yang baru mengenai Model kamar mandi minimalis simpel. Selamat menonton.
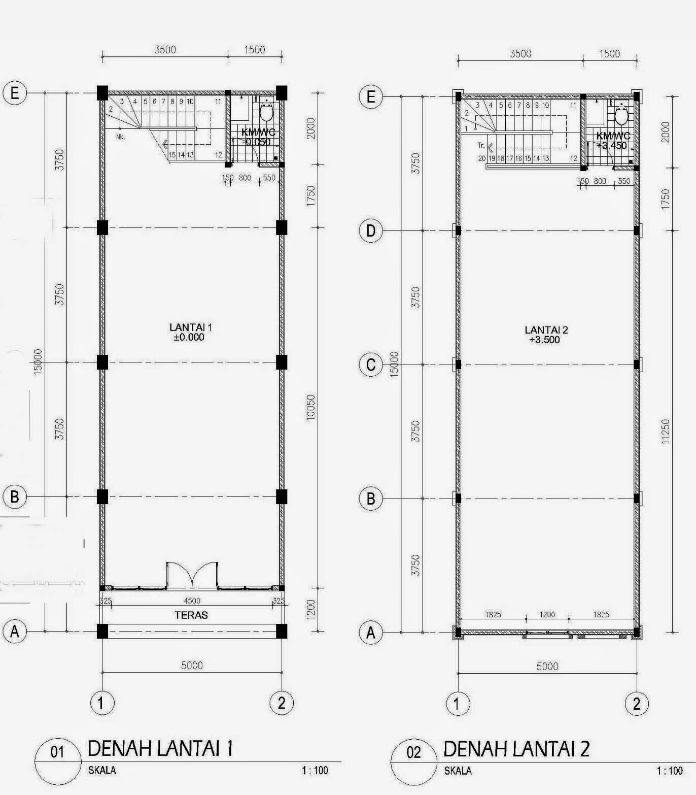
Gambar Denah Rumah Minimalis 2 Lantai Type 60
Gambar di atas merupakan salah satu contoh dari Figur rumah minimalis simpel yang kami telah kami kutip dari sumber
denah rumah minimalis ukuran 6x10 yang berbeda-beda. Mungkin bagi ente yang membutuhkan berita mengenai Contoh rumah minimalis simpel silahkan lihat selengkap di
Trend Warna Cat Rumah 2018 Artikel Tentang Denah Rumah Minimalis 2 Lantai Type 60
16 Model Rumah Minimalis Type 36 2018 Terlengkap
Rumah Minimalis Type 36 - Desain dan Model Rumah Minimalis Type 36 dengan tambahan Gambar terbaru 2018– Nah untuk sebuah desain rumah tentu ada banyak macam
Desain Rumah Mungil Type 36 | PT. Architectaria Media Cipta
wah seru juga kalau desain rumah type 36 ada master/bluprint-nya, jadi kalau mau beli tdk perlu menunggu seminggu atau 2 minggutinggal pesan n gambar desain dikirim
PERTANYAAN & JAWABAN tentang RUMAH IDAMAN
asgun===== ===== TANAH 7X12 – 2lantai. mbak tolong dong kirim gambar denah rumah minimalis dengan luas tanah 90 m2 dng ukuran 7 x 12 diapit
60 Desain Ruko 2 Lantai Minimalis dan Modern
60 Desain Ruko 2 Lantai Minimalis dan Modern - Saat ini perkembangan dunia usaha berkembang pesat. Banyak orang yang memutuskan menjadi pengusaha dan membuka usaha
60 Gambar Rumah Minimalis 1 Lantai Tampak Depan dan Warna
60 Gambar Tampak Depan Rumah Minimalis 1 Lantai - Sebuah rumah yang nyaman selalu diidentikkan dengan rumah besar dengan lahan luas dan desain klasik yang mewah.
Model Rumah Mini Malis - arminiantoday.blogspot.com
aneka warna cat rumah; atap rumah minimalis 1 lantai; Atap Rumah Minimalis 2 Lantai; Atap Rumah Minimalis Modern; Background Abstrak Warna Coklat; background dinding
Desain Rumah Minimalis Ukuran 11 m x 11 m | PT
» Desain Rumah Minimalis Ukuran 11 m x 11 m | Konsultan Arsitek dan Desain Interior, Pembuatan Furniture Built-in, Kontraktor Bangun dan Renovasi Rumah di
Rudy Dewanto: ENAM BENTUK TANGGA
Berbagai macam bentuk tangga marak menghiasi hunianhunian, tidak hanya sebagai jalur sirkulasi manusia kebawah keatas atau sebaliknya, tapi juga merupakan elemen
Harga Plafon Gypsum & GRC Semua Ukuran November 2017
Plafon Gypsum – Pada dasarnya rumah minimalis merupakan sebuah bangunan yang dijadikan tempat tinggal oleh pemiliknya. Seiring berjalannya waktu, banyak masyarakat
Tidak ada komentar:
Posting Komentar